Площадь Стоимость Стоимость за кв.м
172,2 кв.м 6 030 BYN 35 BYN

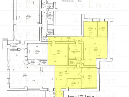
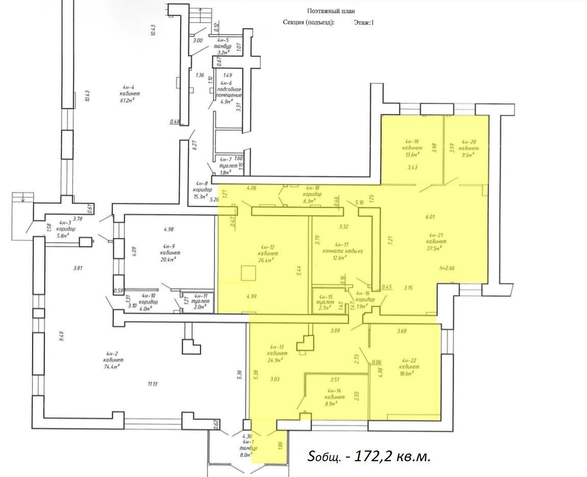
Аренда помещения здравоохранения площадью 172,2 кв. м.

  • Первый этаж,
  • отдельный вход,
  • кабинетная система,
  • просторный ресепшен,
  • доступ 24/7.

Рядом расположен торгово-развлекательный цент Замок, Palazzo и Marriott Hotel. Здание расположено на пересечении главных артерий города, пр-т Победителей и ул. Орловской.

Помещение ранее использовалось под медицинский центр. Соседями в здании является медицинский центр «Синево» и «Инвитро».

Удобная транспортная доступность со второго транспортного кольца и центра города. Свободная парковка (всегда есть места).
Возможность размещения вывески.

Возможные варианты использования:
- медицинское учреждение;
- медлаборатория;
- оздоровительный центр;
- помещение лаборатории;
- массажный салон;
- салон красоты;
- спа салон. 

Если Вас заинтересовало данное предложение, звоните по тел.+375 (29) 12-909-12 и наши эксперты ответят на все Ваши вопросы, а также согласуют время просмотра объекта.


  • Город / Населенный пункт Минск
  • Этаж 1
  • Парковка Да
  • Отдельный вход Да
  • Адрес Победителей 73/1
  • Район Центральный
  • Договор 15/5А
  • Дата договора 19.04.2021
загрузка карты...
Позвонить сейчас