Площадь Стоимость Стоимость за кв.м
2500 кв.м 60 070 BYN 24 BYN
НДС включен

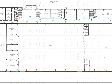
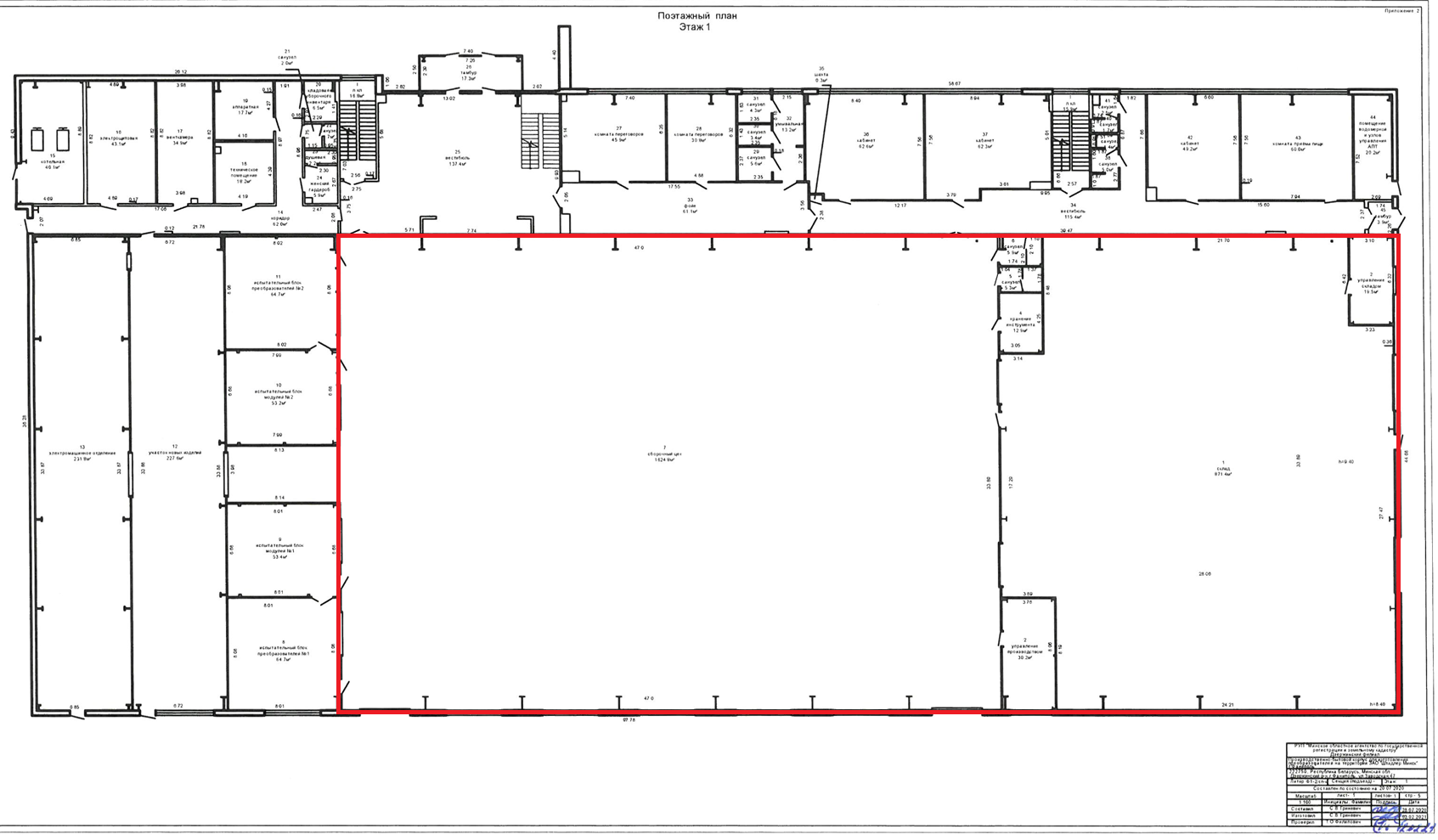
Сдаётся в аренду здание под склад по адресу, Минская область, Дзержинский район, г. Фаниполь, ул. Заводская 47.

Отапливаемое отдельно стоящее здание со своим отдельным пропускным пунктом и большой территорией. Здание построено по самым современным технологиям.
Может использоваться под производственное помещение , складское помещение или для иных целей. В здании имеются все необходимые современные коммуникации и инфраструктура. В том числе дорогостоящая система пожаротушения (может быть включена либо выключена по необходимости). Имеется современная кран-балка. Наливные беспылевые полы. Современная приточно-вытяжная вентиляция. Большая высота потолков. Подведено 1 МВт мощности, имеется возможность дополнительно выделить мощность при необходимости.

Выезд на МКАД - 2, 10 минут от МКАД - 1. Выезд на М - 1, Р - 1, М - 14.
К участку ведет дорога, предусмотренная для проезда грузовыми автомобилям с технически допустимой общей массой более 20 тонн.
Вблизи участка имеются подъездные железнодорожные пути.
Подъездные пути из асфальта и бетонного покрытия.
Территория комплекса полностью огорожена, находится под охраной.

Если Вас заинтересовало данное помещение, звоните по телефону. Наш эксперт ответит на все вопросы и согласует время просмотра объекта.
  • Город / Населенный пункт Фаниполь
  • Этаж 1
  • Парковка Да
  • Отдельный вход Да
  • Адрес Заводская 47
  • Область Минская
  • Коммуникации Вода / Электричество / Канализация
  • Договор 28/7А
  • Дата договора 29.07.2024
загрузка карты...
Позвонить сейчас