Площадь Стоимость Стоимость за кв.м
155,2 кв.м
НДС включен
Предлагается в продажу помещения по адресу г. Минск, ул. Максима Богдановича 25.

Цена продажи: Договорная

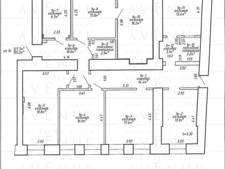
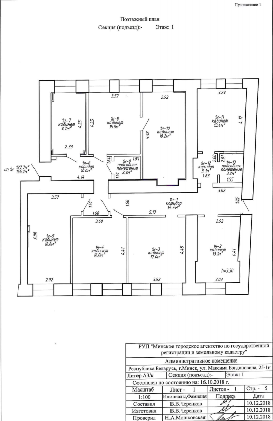
Общая площадь 155,2 кв.м.
  • Помещение предназначено для размещения торгового объекта, медицинского центра, ресторана/кафе, сферы услуг или др.
  • Выделяется 15кВт, есть возможность увеличения мощностей.
  • Расположено на первом этаже жилого 4-этажного дома.
  • Помещение без внутреннего ремонта.
  • Имеется возможность парковки во дворе дома, за общим шлагбаумом.
  • Здание является объектом историко-культурной ценности.
  • Помещение имеет высокие потолки, оборудовано централизованным отоплением, водоснабжением, канализацией.
  • Расположено в 7 минутах ходьбы от станции метро "Немига" и в паре минут от остановок общественного транспорта.
  • Рядом находится Театр оперы и балета, живописный сквер, новая гостиница и новый Бизнес центр.
  • В шаговой доступности - один из самых престижных жилых домов Минска "У Троицкого", известный также как "Дом Чижа", а также дом "Панорама".
  • Если Вас заинтересовало данное предложение, свяжитесь с нами по телефону и наш эксперт ответит на все ваши вопросы и согласует время просмотра объекта.


AVÈNUE - группа компаний по коммерческой недвижимости.
Продажа и аренда коммерческой недвижимости, поиск объектов коммерческой недвижимости по техническому заданию Заказчика, «осознанный» брокеридж, сопровождение перепланировок, модернизаций, реконструкций, создание планировочных решений офисов и концепций объектов.
  • Город / Населенный пункт Минск
  • Этаж 1
  • Этажность 4
  • Отдельный вход Да
  • Адрес Богдановича 25
  • Область Минская
  • Район Центральный
  • Коммуникации Газ / Вода / Электричество / Канализация
  • Договор 21/7А
  • Дата договора 07.10.2025
Позвонить сейчас